|
一、 產品概述 全盛泥漿泵,流體沿泵軸的軸線成70°方向流出,主要部件有蝸殼、葉輪、泵座、泵殼、 葉輪為三片單園弦彎葉,選用半封閉葉輪,并采用可鍛鑄鐵,所以強度高,耐腐蝕,加工方便,通過性好,效率高。 為了減輕重量和減少車削量,泵軸是優質碳素鋼冷拉園鋼制造。 泵座中裝有骨架油封和機械密封,雙重密封防止漏水,延長泵的使用壽命。 本泵可垂直或傾斜使用,占地面積小,蝸殼需埋在工作介質中工作,容易啟動,不需引水,旋轉方向應從 總機長度、材質備有各種規格,以便使用單位根據用途因地制宜選用。
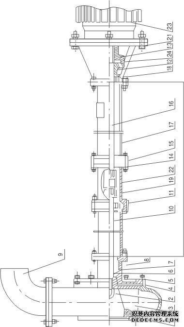
二、 產品結構圖
三、性能參數
四、產品用途 1. 在農村主要用作河泥、糞便、河水、漿飼料的吸送澆灑,代替肩挑人擔,并作排澇,抗旱之用,亦可進行車浜頭,上河泥等積肥生產,還可作農村簡易流動消防水泵。 五、型號意義
六、零件目錄
|
NL污水泥漿泵故障排除
| 現象 | 產生原因 | 排除方法 |
|
不 啟 動 與 運 轉
|
1、饋電線有斷路。
2、電壓太低。 3、兩個半聯軸器間無軸向間隙并卡死。 4、葉輪被雜物卡住。 5、葉輪與蝸殼緊貼。 6、螺帽脫落和平鍵損壞使葉輪打滑。 7、聯軸器平鍵損壞。 |
1、查看熔斷保險絲和接線,并更換之。
2、調高電壓或等電壓升高后再用。 3、調整兩個半聯軸器之間軸向間隙為0.5毫米。 4、排除雜物。 5、重新裝配,分離葉輪和蝸殼。 6、安裝平鍵與螺帽。 7、換裝平鍵。 |
|
超 負 荷 |
1、泵各部裝配不當,轉動困難,異物卡住。
2、同心度變動,軸承損壞,軸變形。 3、旋向相反。 4、揚程過低,流量過大。 |
1、重新裝配,取出異物。
2、修正零件,調換軸承。 3、變換電機旋向。 4、盡量避免長時間使用。 |
|
流 里 不 足
|
1、吸口被阻,泥潭糞坑欠深,泵吸不到泥糞。
2、輸泥管被阻。 3、電機轉速低于額定轉速。 4、葉輪打壞。 5、揚程過高,輸送過遠。 6、旅向相反。 7、泄漏較大。
8、葉輪上繞有雜物。 、 9、介質太稠或供應量不路。 |
1、排除吸口阻檔物,移動泵,使蝸殼全部埋入泥漿糞水中。
2、檢査管道,取出阻檔物。 3、提高電機轉速。 4、調換葉輪。 5、減少揚程,縮短輸送距離。 6、改換電機旋向。 7、檢查泄漏原因,并更換引起泄漏的另件。 8、排除雜物。 9、沖稀介質,增大供應量。 |
|
噪 聲
與 震 動 |
1、葉輪與蝸殼磨擦。
2、軸承已損壞或少油。 3、泵軸與電機不同心,軸彎曲。 4、螺帽有松動。 5、蝸殼中有雜物。 6、工作液中有硬物。 7、吸口有空氣滲入。 8、汲送液體溫度過高。 |
1. 檢查泵的裝配并調整之。
2. 調換軸承或加油。 3. 調同心,校正軸。 4. 擰緊螺帽。 5. 排除雜物。 6. 控制進泵雜物尺度,加密濾網。 7. 深埋蝸殼。 8. 降低液體溫度。 |






在線客服